Stadhouderslaan 11 Montfoort

Verkocht

Stadhouderslaan 11 Montfoort Nederland

Omschrijving

Adres: Stadhouderslaan 11
Plaats: Montfoort
Vraagprijs: € 425.000,– kosten koper

Al een tijdje op zoek naar een mooie en ruime HOEKWONING met GARAGE en PARKEERPLAATS op eigen terrein?

Kom dan zeker eens bij deze zeer goed onderhouden en keurig afgewerkte woning kijken.

In de achtertuin, gelegen op het zuidwesten, bevindt zich een mooie houten overkapping.

Kenmerken
Bouwjaar : 1975
Woonoppervlakte : 122 m²
Perceel : 228 m²

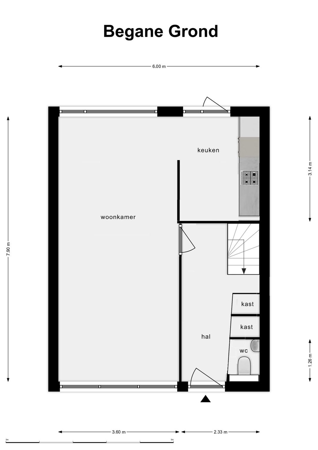
Indeling begane grond
Entree/ruime hal met toiletruimte (licht tegelwerk), meterkast, trapkast en trapopgang.

Mooie en lichte doorzon woonkamer met een mooie pvc vloer met aansluitend een half open keuken.

De keuken is afgewerkt met een moderne inbouwkeuken voorzien van de benodigde inbouwapparatuur.

De oppervlakte van de woonkamer en keuken is samen 36 m².

De achtertuin is uitermate vrij gelegen, heeft een zeer goede zonligging (zuidwesten), een mooie houten overkapping, leibomen, gazon, groenborders en toegang naar de garage. Er is tevens een achterom aanwezig.
Aan de voorzijde is er voor de ingang van de garage een parkeerplaats op eigen terrein aanwezig.

1e Verdieping
Overloop, drie ruime slaapkamers. De kamers zijn allemaal keurig afgewerkt, voorzien van een mooie pvc vloer, alle kamers zijn v.v. dubbele beglazing en hebben een oppervlakte van 15, 13 en 7 m².

De badkamer is ruim, gemoderniseerd en compleet. Hier treft u een royale inloopdouche, toilet, wastafel en vaste kastruimte aan.

2e Verdieping
Voorzolder met nieuw dakraam, cv-/wasruimte met cv-combiketel en aansluitingen voor wasmachine en wasdroger.

Een 4e slaapkamer met groot en nieuw dakraam, volop bergruimte, mooie pvc vloer en een oppervlakte van 16 m².

Aanvullende informatie
– Voegwerk van de gevels is in 2015 geheel vernieuwd;
– Schilderwerk houten kozijnen in 2020 uitgevoerd;
– CV-ketel (HR) vernieuwd in 2014;
– De gehele woning is voorzien van dubbele beglazing;
– De begane grond vloer en gevels zijn geïsoleerd;
– Energielabel C.

Oplevering: in overleg.

Lees de volledige omschrijving

Kenmerken

Algemeen

Aangeboden sinds
6+ maanden
Status
Verkocht
Aanvaarding
In overleg
Soort woonhuis
Eengezinswoning, hoekwoning
Soort bouw
Bestaande bouw
Bouwjaar
1975
Soort dak
Pannen
Ligging
Aan rustige weg, in woonwijk, open ligging

Oppervlakten en inhoud

Wonen
122 m²
Overige inpandige ruimte
18 m²
Gebouwgebonden Buitenruimte
13 m²
Perceel
228 m²
Inhoud
465 m³

Indeling

Aantal kamers
5 kamers (4 slaapkamers)
Aantal badkamers
1 badkamer
Badkamervoorzieningen
Douche, toilet, wastafel
Aantal woonlagen
3
Voorzieningen
Dakraam, mechanische ventilatie, tv kabel

Energie

Energielabel
C
Isolatie
Dakisolatie, dubbel glas, muurisolatie, vloerisolatie
Verwarming
Cv ketel
Warm water
Cv ketel
Cv-ketel
HR combi (gas gestookt combiketel uit 2014, )

Kadastrale gegevens

Perceelnaam
Montfoort A 5194
Oppervlakte
228 m²
Eigendomssituatie
Volle eigendom
Perceel
MFT01-A-5194

Buitenruimte

Tuin
Achtertuin, voortuin, zijtuin
Achtertuin
81 m²
Ligging tuin
Zuidwest bereikbaar via achterom

Garage

Capaciteit
2 auto's
Voorzieningen
Elektra

Parkeergelegenheid

Soort parkeergelegenheid
Op eigen terrein, openbaar parkeren
Bekijk alle kenmerken

Overige media

Roelse Makelaardij Montfoort